Natur- & Familiencamping
Camping geöffnet von Mai bis September
Tourismusbüro/Reservierungsstelle Familiencamping Oberdrauburg
Tourismusbüro: MO-DO 08:00-16:00 und FR 08:00-12:00
Ansprechpartner: Claudia Hotschnig
Telefon: +43 4710 2249-22
E-Mail: oberdrauburg.tourist@ktn.gde.at 
ODER
Camping:  MO-SO 09:00-09:30
Telefon: +43 (0) 681 8151 5147
Natur- & Familiencamping Erlebnisbad
Die Campingkassa ist ab dem 01.09. von 09:00 bis 09:30 Uhr geöffnet. 
Telefon: +43 (0) 681 8151 5147
E-Mail: oberdrauburg.tourist@ktn.gde.at 
außerhalb der Badesaison
+43 4710 2249-22

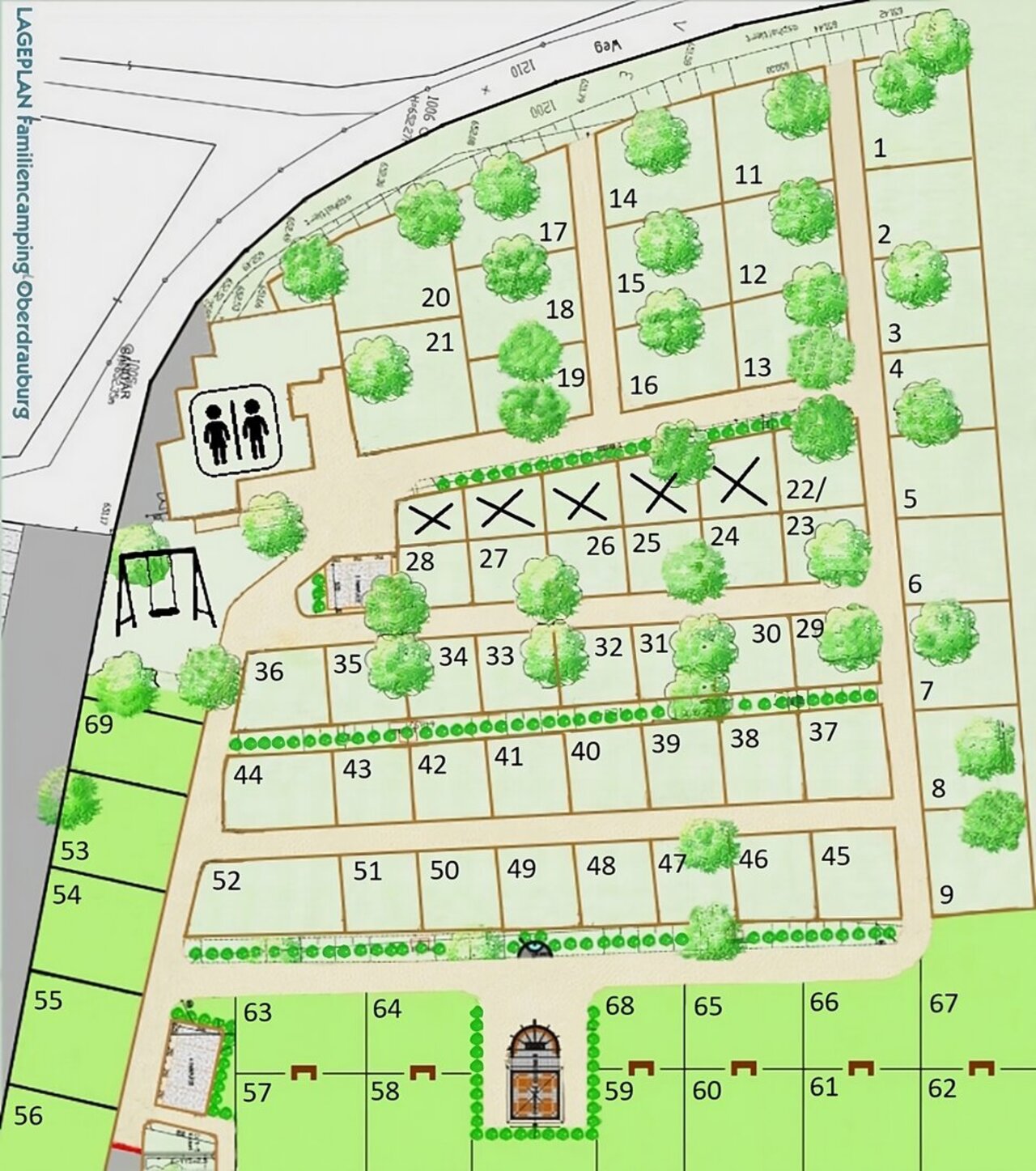
Der Campingplatz Natur- & Familiencamping der Marktgemeinde Oberdrauburg hat eine Größe von 12.000 Quadratmeter, 40% schattige Lage und 60% Wiese, sonnig ohne Erde und Steine. Der Campingplatz ist mit modernen Sanitäreinrichtungen und behindertengerecht ausgestattet. Direkt angeschlossen an den Campingplatz das Erlebnisschwimmbad mit 3 Becken, 56 m Wasserrutsche, Kids River und verschiedene Sportmöglichkeiten. Die Benützung ist im Campingtarif enthalten! Wenige Gehminuten vom Ortskern des Marktes Oberdrauburg entfernt bietet der Ort Einkaufsgeschäfte, Tankstelle, Post, Bank, Arzt und zahlreiche Gasthöfe und Cafes. Während Sie sich von unserem Schwimmbadpersonal verwöhnen lassen können, kommen auch Ihre Kinder kein bisschen zu kurz. Brot & Gebäck: Bäcker kommt zum Campingplatz. Volleyballplatz.
Bewertungen
Daten & Fakten
| Öffnungszeiten | 1. Mai bis 30. September | 
|---|---|
| Größe und Lage | 12.000 m² davon 40% schattige Lage mit schönem alten Baumbestand, 60% Wiese, sonnig, ohne Erde und Steine siehe Lageplan | 
| Sanitäre Einrichtungen | Duschen, chemisches WC, Familienbad. Babybad mit Wickelraum, Behinderten-Dusche u. WC, großer Spülraum, Wasch-, Bügel- u. Trockenraum, Generalsanierung 2004, Kindertoiletten | 
| Sonstige Einrichtungen | Fahrradraum, Kinderspielplatz, Tischtennis, Beachvolleyplatz, Tennisplatz, freier Zugang zum Erlebnisbad, Wireless Lan, Radverleih am Campingplatz (gebührenpflichtig) | 
| Infrastruktur | kleines Gasthaus im Schwimmbad, Neu gestaltete Buffetterrasse, Einkaufsmarkt, Tankstelle, Post, Bank, Arzt, zahlreiche Gasthöfe und Cafes im historischen Ortskern von Oberdrauburg. Gehzeit ca. 10 Min. | 
| Sehenswertes | Kulturell Sehenswertes: Mittelalterlicher Ortskern von Oberdrauburg, Wandergarten im Ortskern Ruine Hohenburg, Ruine Flaschberg, Kirchen und Kapellen Naturschönheiten: Pirkacher Mühlen, Hochstadel und Lienzer Dolomiten, Kreuzeckgruppe | 
Sanitäreinrichtungen


Sämtliche sanitären Einrichtungen wurden generalsaniert und entsprechen dem modernsten Stand der Technik.
Austattung:
- Duschen
- Familienbad
- Babybad mit Wickelraum,
- Behindertendusche und WC,
- großer Spülraum,
- Wasch-, Bügel- und Trockenraum
- chemisches WC
- Kindertoiletten












